Home search
Codice
Tipologia
Uso
Categoria
Città
Zona
Descrizione
Prezzo
Mq
Ordine
CERCA
<< Torna indietro
Susegana
3 locali
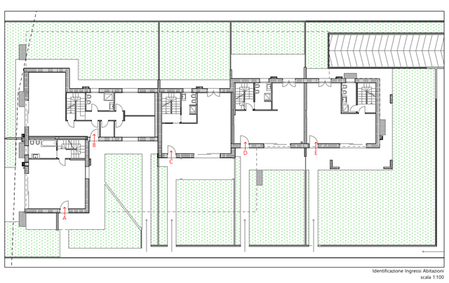
Ponte della Priula proponiamo case a schiera di nuova realizzazione in classe A4 con garage doppio e cantina nel interrato, soggiorno con cucina a vista, bagno al piano terra, tre camere e bagno al piano primo, giardino di proprietà, ingresso indipendente, alta tecnologia a risparmio energetico.
Prezzo
305.000,00 EUR
Mq
173
Classe Energetica
A4
Locali
6
Camere
3
Stato Immobile
In Costruzione
Riscaldamento
Autonomo
Tipo Riscaldam.
Pompa di Calore
Infissi
Legno Doppio Vetro
Accessori
Aria Condizionata, Doppi Vetri, Impianto Fotovoltaico, Impianto Satellitare, Lavanderia, Porta Blindata

MAPPA

via pascoli 100, Susegana (TV)
info@pompeomanuel.it +39 0438 435562
Cookie preference